联系我们
公司名称: 武汉黄冈商会
地址:湖北省武汉市武昌区紫阳
东路77号(伟鹏大厦)1307室
固话:027-87127558 87123413
邮箱:whhgsh@163.com
网址:www.whhgsh.com
商会新闻
伟鹏万科·御玺滨江项目:成就武汉滨江"现象级红盘"
5月初,武汉的一座座滨江高楼规划被刷屏:
5月5日,位于汉口滨江国际商务区的周大福金融中心规划方案批前公示,确定建设高度为475米;
5月7日,位于青山滨江的奥园项目规划方案公示,其中包含1座220米的商务塔楼;
5月8日,位于汉口滨江国际商务区的泰康总部大厦规划出炉,3栋49-55层塔楼的最高高度达272.7米。
不容忽视的是,三处高楼均地处武汉滨江区域,既代表着区域形象,又成就着"武汉高楼"。其间,汉口滨江国际商务区格外显眼。
事实上,"高楼"与"滨江"的组合,不止于字面意义,也不止于政策导向,背后更是一个又一个滨江区域的发展前景缩影,有着一个又一个优秀团队做强大后盾。
此外,滨江区域,不止于商务化的、地标性的高楼,还有极具标识性的豪宅。在大武汉全面发展之时,滨江豪宅中不乏现象级红盘,尤以汉口滨江国际商务区格外突出。
为什么?
关键在于豪宅基因直击高阶置业者的购房需求。
汉口滨江国际商务区的楼盘,一方面因其地段引发购房者关注,另一方面因其高端属性成为高阶人群的改善首选。
每一家房企都可以打造真豪宅?成就现象级红盘?
一切都是有章可循。
在当今楼市,百强房企、自带鲜明IP的产品以及高价值地段,三大要素加持下的楼盘才能领跑楼市。
说到房企,不得不提万科。
今年3月20日,由中国房地产业协会、上海易居房地产研究院中国房地产测评中心共同发布2019中国房地产开发企业500强榜单(100强)。其中,万科位居榜单第二位。
(数据来源:乐居财经)
历经34年的发展,万科在兼顾产品与规模的同时,还形成了一套引领行业发展的"万科标准"。 从材料管理、设计与工艺、竣工交付验收,到施工现场工序检查的过程控制,万科实现了全周期的精益管理体系,成为不断出炉"好房子"的保障。
在武汉,2018年万科的表现不错,在市场占有率排名中位列第三位,具备较大的领先优势。
(数据来源:中国指数研究院)
2018年,伟鹏万科·御玺滨江项目正式于汉口滨江国际商务区核心区面市,为武汉呈现高端居住作品。
值得注意的是,伟鹏万科·御玺滨江是伟鹏与万科携手开发。
成立于1995年的伟鹏集团,是一家跨国经营的多元化企业集团,总部位于武汉,并在美国旧金山、洛杉矶独立运营多家资本投资机构。资产规模突破520亿元,年销售额达80亿元。
集团目前已经形成了"以金融和房地产为基础,大金融、大科技、大消费等综合产业并举发展"的多元经营格局,极大地促进了投资区域产业经济、城市更新和人居环境的综合发展。
在武汉,伟鹏的代表项目有滨江金融中心、硅谷小镇、楚商大厦等。其中,位于汉口滨江国际商务区的滨江金融中心,将引入美国金融、证券、保险等国际企业总部、聚集高端产业,打造美洲金融中心。
关注伟鹏万科·御玺滨江,首先得关注其所在区域——汉口滨江国际商务区。
汉口滨江国际商务区,在交通、商业、教育、医疗等方面的配套都十分完善。这一区域不仅是武汉市重点打造的国际总部型商务区,也是"长江主轴"的重要组成部分。既拥有汉口老城的历史沉淀,经过统一规划、建设,又将绽放新的活力。

(汉口滨江国际商务区效果图)
作为武汉发展的热点区域,政府将整个商务区分两部分打造。汉口滨江国际商务区核心区为重点打造区块,政府聘请全球排名前十的建筑设计事务所美国SOM公司打造。整个区域内规划有商务办公、创意办公、酒店、文化商业等各类型业态;其中整体商务办公占比约51%,高端住宅区规划约23%。
伟鹏万科·御玺滨江正位于汉口滨江国际商务区核心区内,共享区域交通、商务办公、文化娱乐等规划升级的配套利好。不仅会沿袭滨江豪宅区的住宅氛围,又将自然融入滨江商务区的商业与商务气息。在整个汉口滨江国际商务区核心区的规划中, 伟鹏万科·御玺滨江都是受益者。
说到产品,现象级红盘应该具备怎样的气质?
正在发生的变化中足以见端倪。
作为汉口滨江国际商务区核心区纯粹高端住区,伟鹏万科·御玺滨江从地块规划、室内设计到景观园林,细节之处,均是为武汉高阶人群量身定制。
在很多购房者看来,豪宅都是让梦想生活落地的场景。而这,首先得益于场景设计师的精雕细刻。伟鹏万科·御玺滨江的设计师,来自全球六大知名设计团队。如全球酒店设计领域排名前三的CCD香港郑中设计事务所,香港吕元祥建筑设计事务所等。
在重量级设计师团队的加持下,项目方还特意针对高端圈层人群进行了一番调研,契合圈层生活需求,通过九大方面的精细化产品线设计,运用世界先进技艺,创造定制艺术居住产品,打造高端生活格调体验,实现居住舒适体验和心灵栖息的满足。
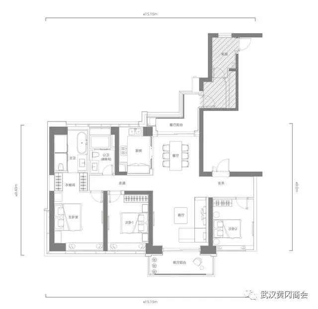
项目产品以三房、四房产品为主,均为2梯2户设计,品牌电梯直接刷卡入户,彰显私密性与尊崇感。
其中,建面约178㎡三房户型,宽奢尺度营造大气餐客双厅,无论是宴客聚会还是家人团聚,更加彰显生活的仪式感与舒适感;南北对景双向阳台,清风往来,阳光充足,将大自然最大程度的纳入家中,让室内空间更大可能地延伸;三卧室均为全南朝向,主卧配备独立衣帽间、卫生间,双次卧打造阔景空间,让居住空间更显舒适。

(伟鹏万科·御玺滨江建面约178㎡户型图)
建面约220㎡四房户型,南北双阳台、餐客一体化,打造明堂空间;定制级的双套房设计,同比宽度配置飘窗、最大化地舒展室内视野,赋予了居住空间更多可能。
(伟鹏万科·御玺滨江建面约220㎡户型图)
考虑不同置业者的不同审美需求,郑忠先生为不同年龄层次、生活阶段的业主打造不同的主题风格,匹配德日、瑞士系列精装配置。
对购房者而言,这或许是大师团队最重要的意义。
在人居配置方面,双入户大堂、精装车库、下沉式庭院等都体现了项目对公共配置的重视与匠心。譬如负一楼的车库大堂高标准打造,精装车库,充分满足了业主需求的车位配比与车位空间尺度,还配备了约20%的充电装配车位,全方面满足业主车辆需求。
下沉式庭院庭的艺术景墙以龙为主题,是精密测量设计后再一片一片安装,共2948片仿铜片。不同的位置来欣赏这幅艺术景墙,能享受到视觉感官的冲击和渐变,同时配以水景,一棵约30年树龄的紫薇树立于水景之上,咫尺之内却造乾坤,犹如一幅画作。这一面龙鳞墙设计还荣获第76届"设计界奥斯卡"德国iF设计大奖。

(伟鹏万科·御玺滨江下沉庭院实景图)
当然,以上只是伟鹏万科·御玺滨江众多产品细节中的部分体现。关注一个高端楼盘,还要有全局视角。
比如,业主在日后入住后涉及到的子女入学问题,购物、社交所需的配套,以及与日常生活息息相关的物业服务等。
事实上,伟鹏万科·御玺滨江一一给出了答案——
就教育方面而言,去年9月,伟鹏万科·御玺滨江举行了教育资源引入签约仪式,拟引入长春街品牌,为汉口滨江国际商务区核心区再添优质教育力量。
在商业配套层面,武汉天地等高端醇熟的商业体分布在附近,同时交通便捷也可以快速抵达武广等商圈。武汉天地壹方北馆现已开业迎宾,7万多方的商业综合体,作为武汉中高端消费的潮流地标,也将带来全新商业体验。
说到物业服务,万科物业服务的品质和口碑早已名声远扬。今年3月19日,观点指数研究院发布的"2019中国物业服务企业TOP30"中,万科物业稳居榜首,再次印证了万科物业的影响力。

(数据来源:观点指数研究院)
伟鹏万科·御玺滨江承袭万科物业"中国物业服务品牌TOP1"优良品质,并且全面升级物业服务标准,如专业安全器配置更加完整,以及门岗及巡逻岗均为24小时配置,还特别聘请专业绿化工程师根据苗木特性对小区内园林绿化进行养护;更不用说定制专属管家:生活管家、房屋管家、资产管家共计超过28项增值服务,全方位满足业主的需求。
伟鹏万科·御玺滨江以汉口滨江国际商务区核心区高起点地段定位,以"东方为魂、时尚为骨"设计理念,用美学为项目赋能,用极致产品力承载滨江豪宅人居风向,作为武汉滨江现象级红盘,让武汉楼市更加充满希望,更深入人心。
1.因文章涉及到规划相关信息:本文所涉及市政规划均出自2014年9月《二七修建性详细规划研究报告》,具体以政府文件为准;
2.本广告对教育资源的介绍旨在提供相关信息,并不意味着伟鹏万科·御玺滨江项目对就学安排作出承诺。教育资源的名称、办学性质、办学规模、学位设置、开学(班)时间、招生条件及招生区域等存在调整的可能,应以政府教育主管部门及办学方颁布的政策规定为准;
3.本文中样板间展示实景图片仅作为销售展示,并非最终交付标准。房屋交付标准以《商品房买卖合同》约定为准。
4.本文对项目及周边教育、交通、商业、医疗等资源的介绍为截至2019年6月24日的情况,仅作转述,具体以实际落地情况为准。
5.文中数据来源于武汉国土资源和规划局、中国指数研究院、乐居财经、观点指数研究院等。
